Hochwertiges Villendoppelhaus im Dortmunder Süden
In bester Wohnlage im Dortmunder Süden errichten wir ein elegantes Villendoppelhaus mit zwei Wohneinheiten auf einem circa 460 qm großen Grundstück. Das Grundstück wird erschlossen über den wenig befahrenen Dachsweg und bietet auf Grund seiner Hanglage einen weiten Blick über die Stadt Dortmund.
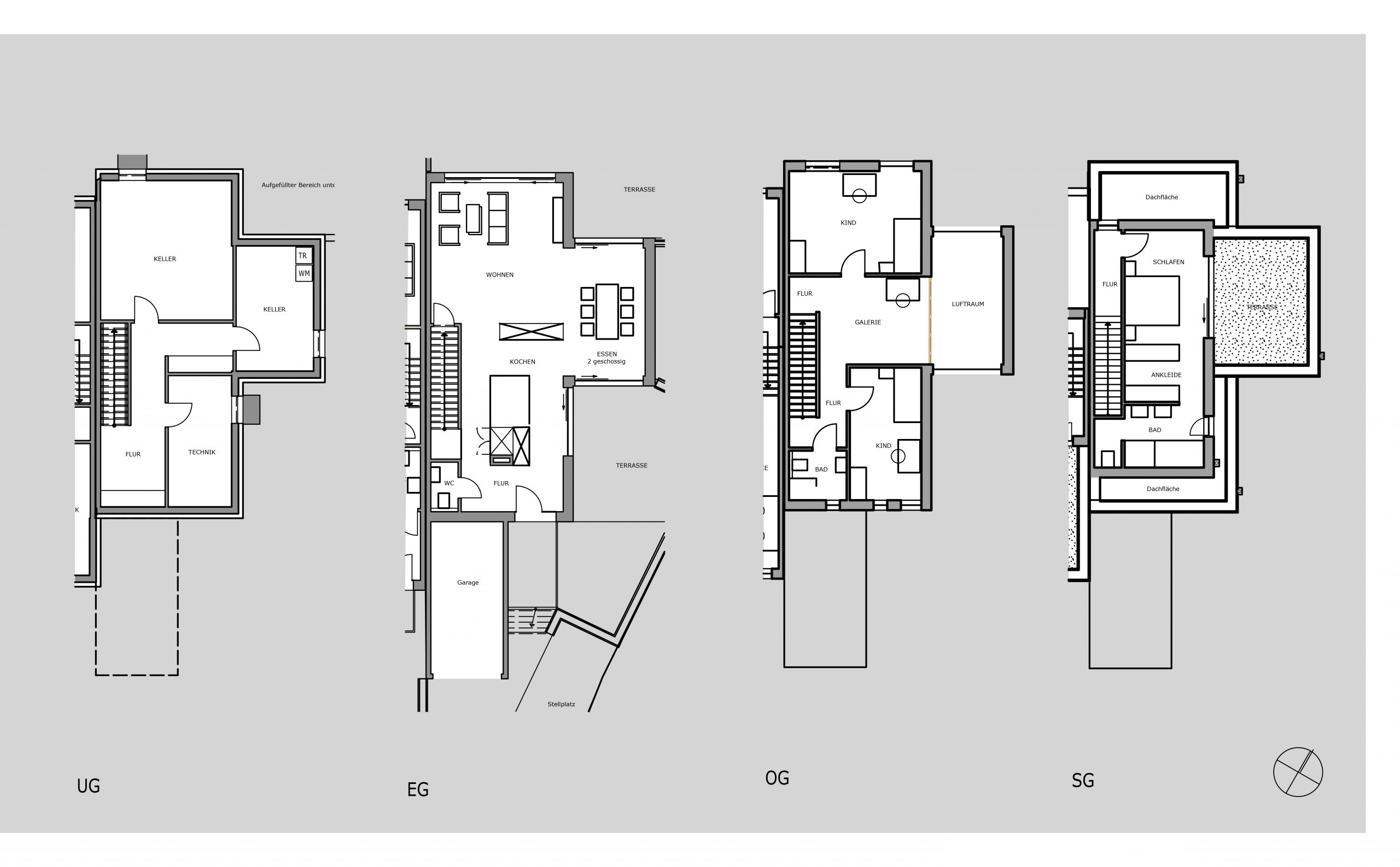
Diskret führt eine schlichte Eingangstür in ein Haus mit überraschenden Raumeindrücken. Nach dem Eintritt zeugen das tageslichterfüllte Erdgeschoss mit seinen fließenden Raumübergängen und Durchblick in die Weite Dortmunds, von einem ungewöhnlichem Wohnerlebnis. Die offene Werkküche und die zweigeschossige Esshalle mit ihren bodentiefen Verglasungen umfassen ein kleines Patio und bieten Ambiente für stilvolles Kochen und Essen mit Freunden.


Die Transparenz der Esshalle
mit ihren großen Fensteranlagen setzt sich zur Gartenseite fort.
Übergangslos schließt der Wohnbereich an. Eine Schiebefensteranlage nimmt die gesamte Raumbreite ein und integriertdie Terrasse in den Wohnablauf. Ein großes Antrittspodest gegenüber der Garderobe markiert den störungsfreien Aufgang in die oberen Etagen.
Die gradläufige Treppe führt ins Obergeschoss. Ein heller, breiter Flur erschließt die Kinderzimmer sowie die Arbeitsgalerie mit Blick in die Esshalle.
Ein separates Duschbad komplettiert das Angebot. Die oberste
Ebene in Form eines Mini-Penthouses ist ausschließlich
dem Elternschlafzimmer mit Masterbad vorbehalten. Eine
große nach Osten gerichtete Dachterrasse bietet Raum zur
Gestaltung mit Pflanztrögen. Ein stimmungsvoller Ort, um den
Tag an lauen Sommerabenden ausklingen zu lassen.

- Kaufpreis: 949.000 Euro
- Wohnfläche: ca. 179,00 qm
- Nutzfläche: ca. 63,00 qm
- Gesamtfläche: ca. 242,00
- Grundstücksfläche: ca. 250 qm
